Appartamenti bilocale all'asta, Afragola

Campania Napoli Afragola via Murillo Fatigati, I traversa

Offerta Minima

€ 60.000

Appartamento piano terra afragola con cortile comune
Rif.: 1682-NA33

  • Asta
  • Contratto
  • 0 m²
  • Superficie
  • 2
  • Locali
  • 1
  • Camere
  • 1
  • Bagni
  • N.D.
  • Classe Energetica
  • Campania
  • Regione
  • Napoli
  • Provincia
  • Afragola
  • Comune
  • Afragola
  • Località

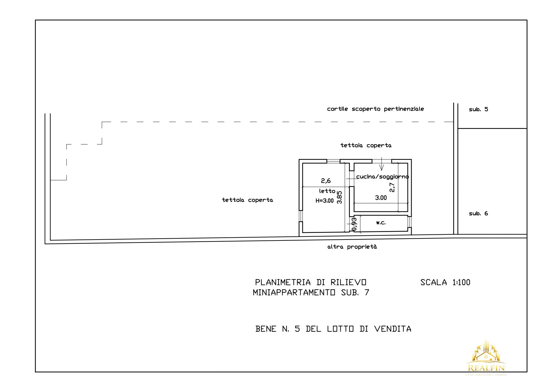
Situato ad Afragola, questo appartamento al piano terra offre una soluzione abitativa interessante per chi cerca un immobile in una zona periferica ma ben collegata. L'unità immobiliare si trova in via Murillo Fatigati, I traversa. L'appartamento è caratterizzato da una superficie netta di circa 47 mq e un'altezza interna di 3 metri, offrendo spazi ben distribuiti e funzionali. L'immobile è composto da un mini appartamento al piano terra, ideale per chi desidera una soluzione compatta ma confortevole. La proprietà include anche una quota indivisa di un cortile scoperto di circa 62 mq, che offre uno spazio esterno comune utile per diverse attività. Nonostante la posizione decentrata rispetto al centro di Afragola, l'appartamento è più vicino al comune di Casalnuovo di Napoli, garantendo comunque un buon accesso ai servizi e alle infrastrutture della zona.

Immobile posto in vendita dal Tribunale. Vieni a scoprire come acquistare prima dell'asta. Annuncio finalizzato alla vendita del servizio di assistenza per un acquisto sicuro e conveniente.

Caratteristiche

Stato Occupazione:
Piano: Piano Terra - piani edificio: 1

Foto

Appartamento piano terra afragola con cortile comune - 1
Appartamento piano terra afragola con cortile comune - 2
Appartamento piano terra afragola con cortile comune - 3
Appartamento piano terra afragola con cortile comune - 4
Appartamento piano terra afragola con cortile comune - 5
Appartamento piano terra afragola con cortile comune - 6
Appartamento piano terra afragola con cortile comune - 7
Appartamento piano terra afragola con cortile comune - 8
Appartamento piano terra afragola con cortile comune - 9
Appartamento piano terra afragola con cortile comune - 10
Appartamento piano terra afragola con cortile comune - 11
Appartamento piano terra afragola con cortile comune - 12
Appartamento piano terra afragola con cortile comune - 13
Appartamento piano terra afragola con cortile comune - 14
Appartamento piano terra afragola con cortile comune - 15
Appartamento piano terra afragola con cortile comune - 16
Appartamento piano terra afragola con cortile comune - 17
Appartamento piano terra afragola con cortile comune - 18
Appartamento piano terra afragola con cortile comune - 19
Appartamento piano terra afragola con cortile comune - 20
Appartamento piano terra afragola con cortile comune - 21
Appartamento piano terra afragola con cortile comune - 22
Appartamento piano terra afragola con cortile comune - 23
Appartamento piano terra afragola con cortile comune - 24

Mappa

Benvenuto! Clicca su uno dei nostri assistenti per inviare un messaggio, vi risponderanno il prima possibile.

Chat via WhatsApp